Plan Your stay

Accessibility

Accessible Accommodation in Yarrawonga and Nagambie | Twin Palms

At Twin Palms, we believe everyone deserves a relaxing and memorable getaway. We understand that accessibility needs can vary from guest to guest and from family to family, which is why we aim to provide clear, honest information about our homes so you can decide whether they will suit your needs.

Our properties, Yarrawonga by Twin Palms and Bord Du Lac Nagambie, offer spacious single-storey holiday homes in Yarrawonga and Nagambie, designed for comfort and ease of living. While the homes are not purpose-built accessible accommodation, they include features that may suit many guests with additional needs.

We warmly welcome open conversations and encourage guests to reach out prior to booking so we can help ensure your stay is as smooth, comfortable and enjoyable as possible.

Accessible Accommodation at Yarrawonga by Twin Palms

Yarrawonga by Twin Palms is a single-storey holiday home in Yarrawonga, designed to provide a comfortable and relaxing stay for families, couples and groups.

There is a small step at the front door and alfresco area, as well as a small step from the garage into the home via the internal access door.

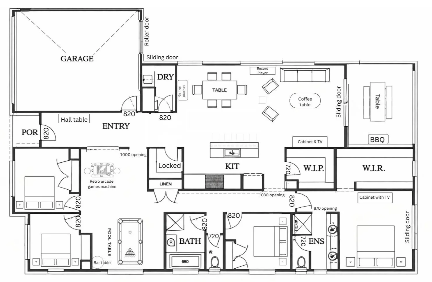
The entry door measures 820mm wide, with 720mm/ 820mm wide internal doors throughout the home.

Both bathrooms include showers with a small step entry and handheld shower heads. While the home does not currently have grab rails installed, the spacious master bedroom allows room for mobility aids if required.

Guests can enjoy a double lock-up garage with internal access (small step), flat pathways to the property and a location on a quiet residential street in Yarrawonga.

The home is also suitable for families travelling with young children, with a secure backyard, privacy blinds and block-out blinds in bedrooms. There is space for portable cots, although these are not currently supplied.

The property offers self check-in with smart locks and personalised door codes, allowing guests to arrive comfortably at their own pace.

Accessible Accommodation at Bord Du Lac Nagambie

Bord Du Lac Nagambie is a spacious single-level holiday home in Nagambie, designed for relaxed lakeside stays.

There is a small step at the front entrance and alfresco area, however step-free access is available via the internal garage entry, which connects directly to the home.

The entry door measures 1020mm wide, with 820mm wide internal doors throughout the property.

Both bathrooms feature showers with a small step entry and handheld shower heads. There are currently no grab rails installed, however the spacious master bedroom provides room for mobility aids if required.

Guests have access to a double lock-up garage with internal access, flat pathways and a peaceful location on a quiet residential street in Nagambie.

The home also offers a secure backyard suitable for families, privacy blinds and block-out blinds in bedrooms, and space for portable cots, although these are not currently supplied

Guests benefit from self check-in with smart locks and personalised door codes, providing flexible and convenient arrival.

Bord Du Lac Nagambie - layout

Yarrawonga by twin palms - layout

These floor plan have been provided as a guide to the home’s layout and flow. While not to scale, all door and opening sizes shown are accurate.

We understand that every guest’s needs are unique, and thoughtful planning can make all the difference to a comfortable and enjoyable stay.

If you or someone in your group has specific accessibility requirements, we warmly encourage you to contact us prior to booking. We are always happy to answer questions about the layout of our homes, provide additional measurements if needed, or discuss any reasonable adjustments that may help make your stay more comfortable.

Our goal is to ensure guests feel confident when choosing a Twin Palms property, and we will always do our best to provide clear information so you can decide if the home is the right fit for you.

📧 Email: twin-palms@outlook.com

📞 Phone: 0405 839 397

❋ Have Questions About Accessibility?

We welcome open conversations and will always do our best to assist wherever possible.

If you would like to discuss the suitability of one of our homes before booking, we would be very happy to help.

Please feel free to contact us with any questions about the layout, access points, or specific requirements for your stay. We are always happy to provide additional details where possible so you can book with confidence.

At Twin Palms, we believe great holidays start with good communication, and we are always here to help make your stay as comfortable and enjoyable as possible.

Accessibility Disclaimer

While we aim to provide accurate and helpful information about our properties, they are not purpose-built accessible accommodations. Suitability will vary depending on individual needs, and we encourage guests to contact us prior to booking to discuss any specific requirements and ensure the property is suitable for their stay.

What Our Guests Say

Spacious and comfortable

Guests consistently highlight the spacious layout, with many noting how comfortable and easy the home is to move around during their stay.

★★★★★

Everything we needed for a relaxing stay

“The home was fully equipped with everything we needed for a comfortable and relaxing stay.”

★★★★★

Peaceful and quiet location

Guests often mention the quiet, peaceful setting, creating a calm and relaxing environment throughout their stay.

★★★★★